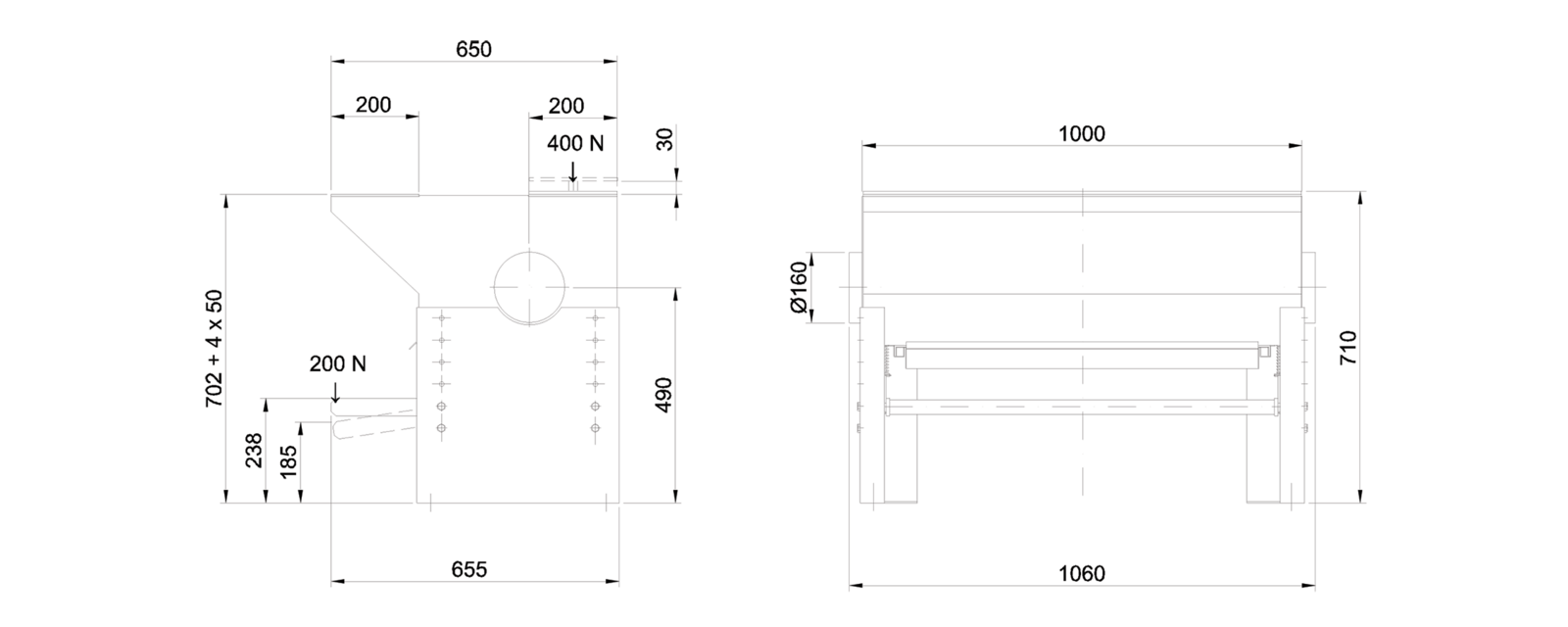
Educational cutting table for plate cutting, very suitable for technical schools and institutions. Meets demand for extraction from beneath the plate at cutting. Is delivered with fixture for clamping of plates.





Cutting table OXY must be connected to existing extraction unit.